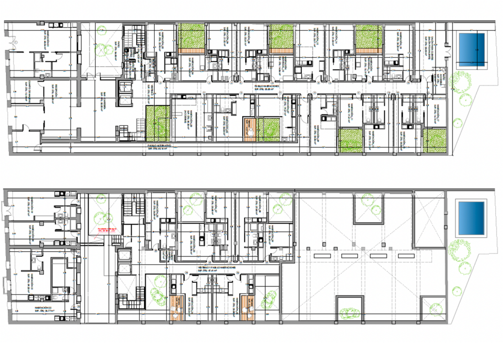
Patraix. Rehabilitación y Promoción

Rehabilitación y gestión. Posterior ampliación con promoción y construcción de apartahotel en el barrio de Patraix, Valencia